Красногорск
Сдам
Сниму
Продам
Куплю
         Площадь:
от:

до:
кв.м.
         Стоимость:
от:

до:
руб.
Показать

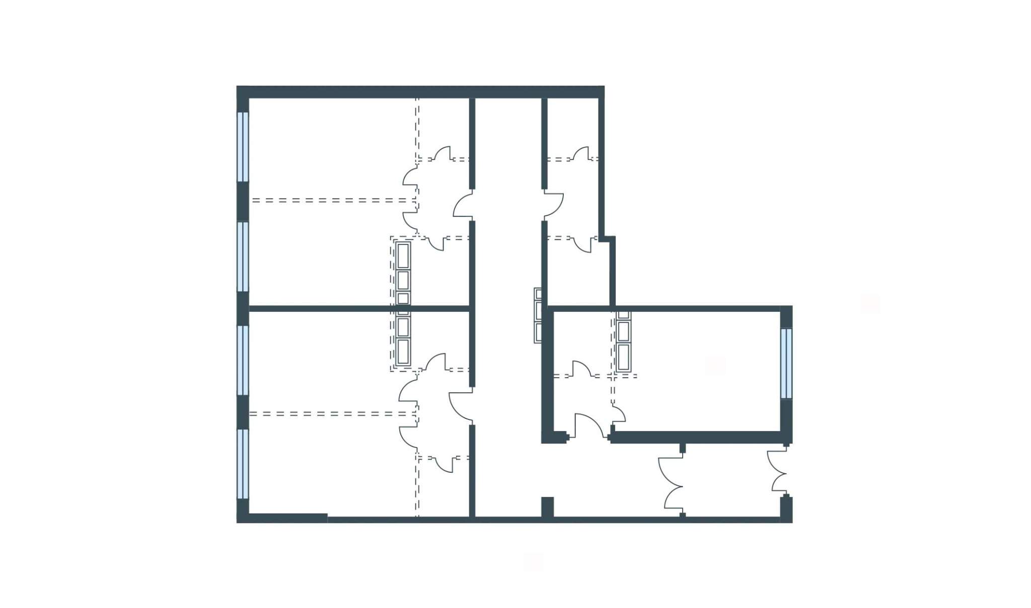
Аренда ПСН площадью 129.2 м2

Стоимость аренды 129200 руб./месяц
Сдаётся в аренду коммерческое помещение площадью 129,2 м на 1-м этаже 8-этажного жилого дома в ЖК «Новая Рига».
Основные преимущества:
место под вывеску;
расположение в блоке с входом в подъезд, что обеспечивает высокую проходимость арендаторам;
круглосуточный доступ;
помещение без ремонта, что позволяет обустроить его по своему вкусу и требованиям бизнеса;
помещение находится в жилом комплексе комфорт-класса;
развитый район с насыщенной инфраструктурой и активным пешеходным трафиком.
Технические характеристики: наличие всех необходимых коммуникаций: водоснабжение, канализация, электроснабжение.
Условия: помещение предоставляется без посредников, напрямую от собственника - компании «Аструм Недвижимость», которая управляет коммерческой инфраструктурой жилых комплексов ГК «Гранель».
ЖК «Новая Рига» - это проект комплексного освоения территории на западе Подмосковья, в деревне Глухово, всего в 10 км от МКАД по самому престижному направлению - Новорижскому шоссе. Жилой комплекс от застройщика «Гранель» находится среди элитных поселков, в безмятежной тишине лесов - рядом располагаются заповедник «Лохин остров», музей-усадьба «Архангельское», русло Москвы-реки.
В ЖК возводятся 9 жилых домов переменной этажности (от 5 до 8 этажей) , а собственная развитая инфраструктура позволит жителям чувствовать себя комфортно. Семь домов из девяти введены в эксплуатацию и активно заселяются. В ближайшее время будут сдаваться еще два жилых корпуса. Численность жителей комплекса - более 7 200 чел.
Наши менеджеры помогут вам подобрать наиболее подходящее помещение для вашего бизнеса. Звоните и узнайте подробности!

Общая стоимость: 129200 руб./месяц с НДС
Общая площадь: 129 кв. м
Этаж/этажность: 1/9

г. Красногорск
Романовская улица, 15

Отдел продаж т. (495) 0239502



Расскажи об этом объявлении:

 facebookFacebook    twitterTwitter    в контактеВ Контакте  
2147743
17 Октября 2025
просмотров 121



  • test
  • test
  • test
  • test
  • test
  • test
  • test
  • test
  • test
  • test
  • test
  • test

Добавить комментарий



Похожие объявления





Отправка сообщения хозяину объявления: №
Пожаловаться на объявление: №